CD Home Page

Lighting and Sound


Important Info
for Renters


Contacts


Photo Gallery


       

 

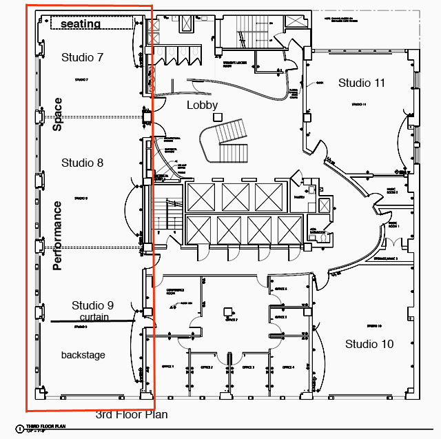
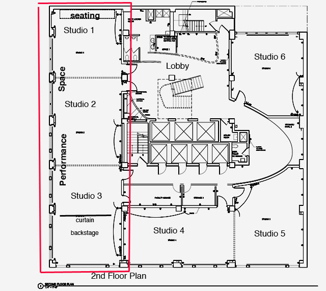
The Studio Theaters Overview        

There are movable “airwalls” between Studios 1, 2 & 3  on the 2nd floor,
and again between Studios 7, 8 & 9  on the 3rd floor.  These studios can
be separated & combined as desired. Generally,  Studios 1, 2 & 3 would
be used together as one large space for a performance.
The same applies to Studios 7, 8 & 9.

The combined space (1-2-3 or 7-8-9) is approximately 27 feet wide
by 97 feet long. With the seating & curtains in place the performance
area is approx 25' wide X 50' deep.

The technical specifications for each floor are drawn with this assumption
of combining the 3 studios per floor to form one large performance area.


 

A curtain can be pulled across the space, in the middle of Studio 3 on the 2nd Floor, and in the middle of Studio 9 on the 3rd Floor, which creates a backstage area. (Refer to floor plan at top of page.) There is access from this backstage to the corridor & dressing rooms and restrooms for performers. Other curtains can be hung on traveler tracks to form wings or divide the space differently.

The studios have fully functional theatrical lighting & audio systems. For more details about these, you can click here.

For overview photos of the spaces, Click Here

There are black drapes to cover the street windows & studio mirrors. There is roll-out bleacher seating at one end of the space, in Studio 1 on the 2nd Floor, and in Studio 7 on the 3rd Floor, seating for 63 people.  Chairs are available for additional seating. The maximum seating capacity is 150 people. We recommend that you try not to exceed 130 people. The configuration of the studios is flexible & performance areas & seating can be set up several different ways.